inginterior

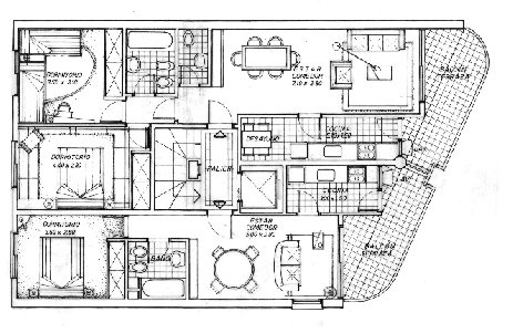
Edificio Parque España 1



Obras realizadas

Av. Wheelwright 1945, Rosario.

Planta baja y 11 pisos. 22 departamentos y cocheras, quincho y solarium. Vistas panorámicas al río

Consultorio médico en PB con ingreso independiente.

2400 m2