inginterior

Edificio Bv. Oroño 1482



Obras realizadas

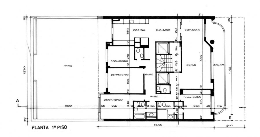
Planta baja y 11 pisos. 11 departamentos de piso exclusivo, cocheras, quincho y solarium. Vistas a Bv. Oroño, terminaciones de categoría. Ventilación cruzada. 

Rosario

2220 m2