inginterior

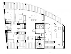
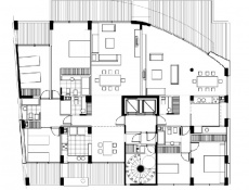
Edificio Las Palmas. Av. Wheelwright 1771




Obras realizadas

18 pisos, 34 departamentos. Vistas panorámicas al río. Cocheras. Bauleras

Piscina, gimnasio, quincho y solarium. Terminaciones de categoría

Superficie 8000 m2