inginterior

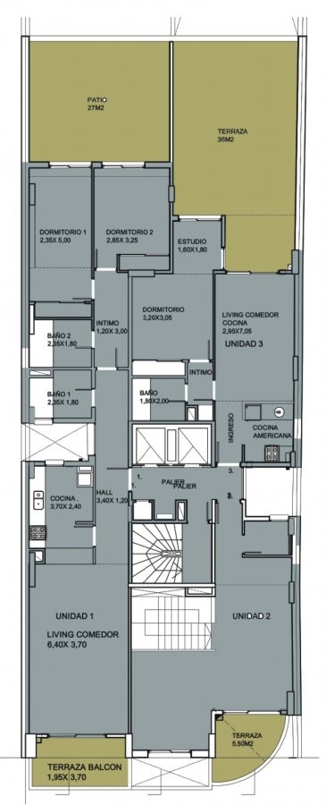
Edificio Plaza



Obras realizadas

Proyecto y dirección de obra.

Belgrano 760. San Lorenzo. Argentina

2200 M2.

36 unidades de departamentos y local comercial.